側入式皮帶攪拌機
一、側入式皮帶攪拌機概述
側入式皮帶攪拌機是將攪拌裝置安裝在設備筒體的側壁上,攪拌機上的攪拌器通常采用軸流型,以推進式攪拌器為多,在消耗同等功率情況下,能得到好的攪拌效果,功率消耗為頂攪拌的1/3~2/3,成本為頂攪拌的1/4~1/3。轉速可在200~750r/min。
廣泛應用于水處理、沼氣發酵、脫硫、除硝、化工、食品、造紙、石油等行業以及各種大型貯罐或貯槽的攪拌。使互溶液體混合均勻;使固體粒子在液相中溶解、離底懸浮或均勻懸??;使不相溶的另一液相均勻懸浮或充分乳化;強化相間的傳質(如吸收等);強化傳熱及防止沉積等。具有投資少、消耗功率小、攪拌功率高、操作方便等特點。
二、產品特點
1)軟傳動,機械損傷低,結構緊湊,運行平穩;
2)占地面積小,處理量大,能耗低;
3)安裝、運行、維護費用低;
4)可在要求的混合時間內達到一定的攪拌強度,滿足混合速度快、均勻、充分等要求,且水頭損失小,并可適應水量的變化以適用于各種介質容量的攪拌。
三、構造及工作過程
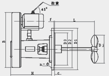
CPJ型側入式皮帶攪拌機由電機、皮帶盤、機架、機械密封、堵漏裝置、攪拌軸、攪拌器等組成。根據密封方式可分為:A型:機械密封,B型:填料密封,C型:其它密封方式,可適用于不同密封要求的場合。安裝方式為臥式安裝,也可根據現場工藝條件調整安裝方式。
驅動裝置采用普通電機或防爆電機直接通過皮帶輪驅動裝置與攪拌軸聯接。攪拌軸由雙向推力軸承和水潤滑滑動軸承支承,具有足夠的強度和剛度,并具有好的穩定性。
四、型號表示方法
五、側入式皮帶盤攪拌參數

CPJ側入式攪拌機主要參數及尺寸
|
攪拌機型號 |
電機功率 |
攪拌機轉速 |
攪拌器直徑 |
安 裝 外 型 及 尺 寸 |
攪拌容量 |
重量 |
|
(Kw) |
(r/min) |
Dj |
D1 |
D2 |
D3 |
C |
F |
n-Ø |
L |
H |
B |
(m3) |
(Kg) |
|
CPJ-0.55 |
0.55 |
400 |
250 |
375 |
335 |
309 |
24 |
2 |
12-Ø18 |
370 |
550 |
580 |
5~10 |
197 |
|
250 |
350 |
490 |
445 |
413 |
26 |
530 |
208 |
|
CPJ-0.75 |
0.75 |
400 |
250 |
375 |
335 |
309 |
24 |
2 |
12-Ø18 |
370 |
8~15 |
198 |
|
275 |
350 |
490 |
445 |
413 |
26 |
530 |
209 |
|
CPJ-1.1 |
1.1 |
400 |
300 |
440 |
395 |
363 |
24 |
2 |
12-Ø18 |
450 |
10~25 |
209 |
|
250 |
400 |
540 |
495 |
463 |
28 |
600 |
228 |
|
CPJ-1.5 |
1.5 |
400 |
300 |
440 |
395 |
363 |
24 |
2 |
16-Ø22 |
450 |
15~30 |
212 |
|
275 |
400 |
540 |
495 |
463 |
28 |
600 |
231 |
|
CPJ-2.2 |
2.2 |
375 |
350 |
490 |
445 |
413 |
26 |
2 |
16-Ø22 |
530 |
680 |
700 |
25~30 |
345 |
|
250 |
450 |
595 |
550 |
518 |
30 |
600 |
373 |
|
CPJ-3 |
3 |
400 |
350 |
490 |
445 |
413 |
26 |
2 |
16-Ø22 |
530 |
30~60 |
348 |
|
275 |
450 |
595 |
550 |
518 |
30 |
600 |
376 |
|
CPJ-4 |
4 |
375 |
400 |
540 |
495 |
463 |
28 |
2 |
16-Ø22 |
600 |
40~80 |
368 |
|
300 |
450 |
595 |
550 |
518 |
30 |
600 |
382 |
|
CPJ-5.5 |
5.5 |
400 |
400 |
540 |
495 |
463 |
28 |
2 |
20-Ø22 |
600 |
800 |
820 |
50~100 |
565 |
|
275 |
500 |
645 |
600 |
568 |
32 |
650 |
593 |
|
CPJ-7.5 |
7.5 |
375 |
450 |
595 |
550 |
518 |
30 |
2 |
20-Ø22 |
600 |
80~150 |
590 |
|
275 |
550 |
755 |
705 |
667 |
36 |
700 |
623 |
|
CPJ-11 |
11 |
400 |
450 |
595 |
550 |
518 |
30 |
2 |
20-Ø26 |
600 |
150~250 |
636 |
|
275 |
600 |
755 |
705 |
667 |
36 |
750 |
753 |
|
CPJ-15 |
15 |
400 |
500 |
645 |
600 |
568 |
32 |
2 |
24-Ø26 |
650 |
200~300 |
666 |
|
250 |
650 |
860 |
810 |
772 |
40 |
5 |
810 |
830 |
備注:
1、表中重量為約重,不含懸掛或地腳支撐的重量
2、電機和尺寸根據用戶的物料特性及實際情況來定
3、當容器壁厚太薄時,強度不夠,請使用懸掛、 地腳支撐等輔助加固措施
4、表中數據只做參考用